DZC VRBANI
DOM ZDRAVLJA, KNJIŽNICA I DRUŠTVENI DOM

 

URBANI PASSAGE

Projekt se rađa iz prvotne vizije - prvonagrađenog natječajnog rješenja UPU-a Vrbani III - s ambicijom da izgradi ono što nedostaje: čitljiv javni prostor koji postaje središnje tkivo urbanog života naselja. Ovdje se arhitektura ne nameće, već ustupa mjesto prostoru između - passage postaje nova urbana dnevna soba, poveznica koja ispisuje novu geografiju kretanja između Horvaćanske i Kutnjačkog puta.


DVA VOLUMENA

Dva volumena - dom zdravlja te knjižnica-društveni dom - ne zatvaraju se u sebe, već se otvaraju jedni prema drugima i prema gradu, dijeleći zajedničku garažu i oblikujući središnji prolaz koji pulsira trgovima i parkom. Arhitektura postaje kulisa za svakodnevicu; prizemlja postaju membrane između unutra i vani, između privatnog i javnog.

 

KONTEKSTUALNI IZMAK

Izmak zgrada slijedi logiku konteksta - ne suprotstavlja se, već nastavlja dijalog s okolnim građevnim linijama. Dva prostorna akcenta - intimni sjeverni trg s parkom te otvoreni južni trg - grade hijerarhiju okupljanja. Južni trg ne završava na sebi: vizualno i funkcionalno seže prema budućem sportsko-rekreacijskom centru, predviđajući sutrašnje slojeve urbanog života.

 

STRUKTURNO ZELENILO

Zelenilo nije dekor već strukturni element: drvoredi, parkovne površine i tamponi grade mikroklime, filtriraju poglede, stvaraju ambijente za zadržavanje. Javni prostor projektiran je kao scenografija višestrukih upotreba - boravak, igra, druženje, događanje.

 

VIŠESLOJNO POVEZIVANJE

Knjižnica i ulaz Doma zdravlja gledaju na passage, društveni dom se stepenasto uzdiže prema trgu. Ovdje arhitektura ne odvaja, već povezuje na više razina - vertikalno, vizualno, funkcionalno. Javni prostor dobiva stalnu ulogu, nije epizoda već protagonista svakodnevnog života.

 

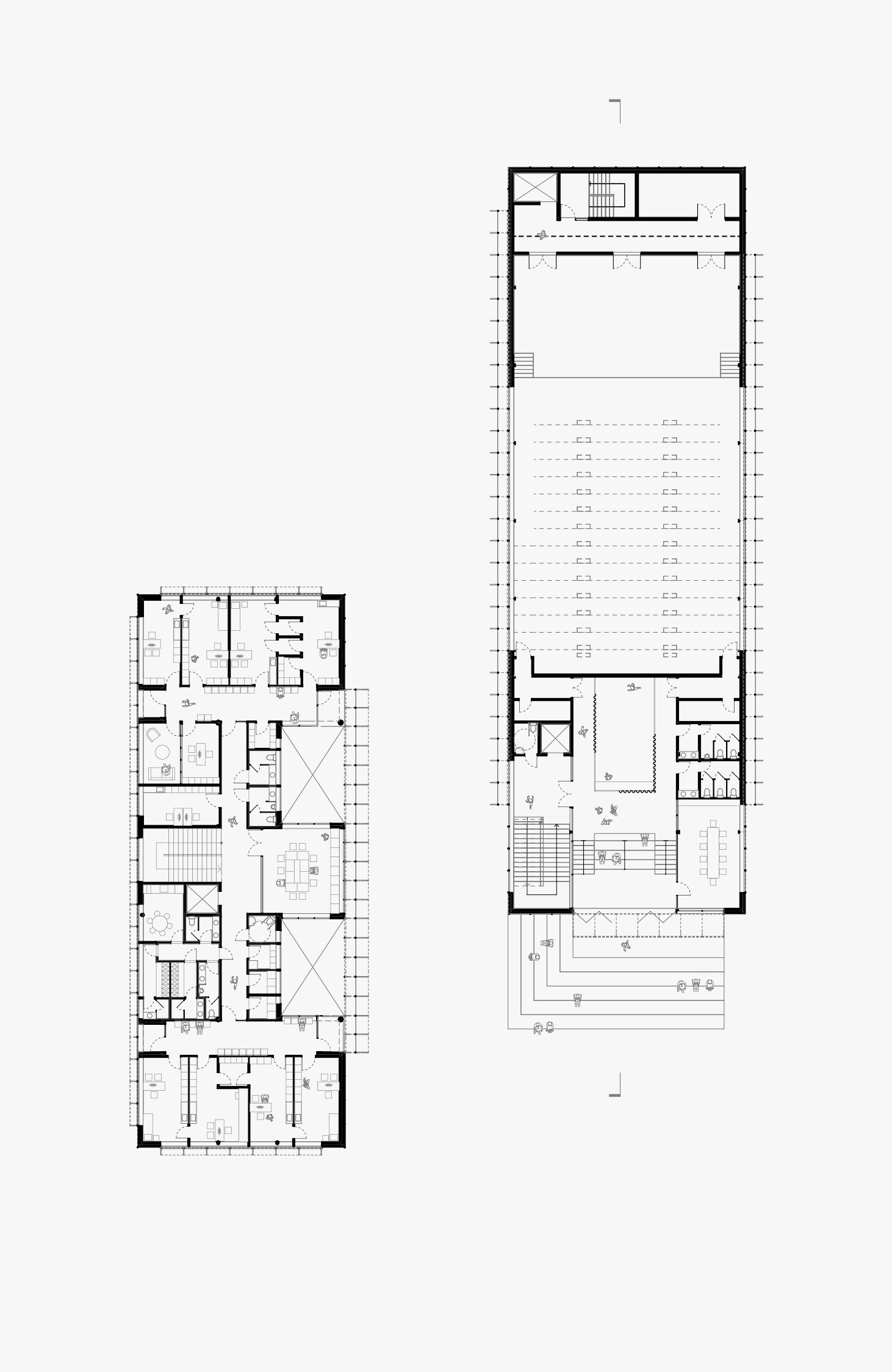
SITUACIJA S PRIKAZOM PRIZEMLJA

.

PROGRAMSKA VERTIKALA

Dom zdravlja organiziran je oko centralnog atrija - hijerarhija pedijatrije, specijalističkih djelatnosti i dentalne medicine prati vertikalu. Knjižnica je transparentnost i fleksibilnost, društveni dom spektar programa od dvorane do krova kao dodatnog javnog sloja. Garaža je isključivo skrivena podzemna infrastruktura.

TRANSPARENTNA PRIZEMLJA

Ostakljena prizemlja s nadstrešnicama izlažu unutarnje programe javnosti, čineći ih čitljivima i dostupnima. Dijagonalne veze kroz park i predvrt grade dodatne slojeve protočnosti. Koncept omogućuje faznu gradnju - volumeni se mogu realizirati neovisno, zadržavajući logiku cjeline.

AKSONOMETRIJSKI PRIKAZ

MORFOLOGIJA PRIZEMLJA

Projekt gradi identitet mjesta kroz morfologiju prostora, ne objekata - stvara novu urbanu vrijednost za Vrbani III.

TLOCRT PRVOG KATA

PRESJEK DRUŠTVENOG DOMA 1-1

INTERIJER

Budući kompleks zamišljen je kao izvorište trajnog, složenog i fleksibilnog procesa kojim se osigurava podrška korisnicima na njihovu životnom putu.


GALERIJA


INFO

LOKACIJA KUTNJAČKI PUT 12-14 . ZAGREB · AUTORska suradnja Vedran Jukić · PROJEKTNI TIM PETRA KNEŽEVIĆ . ANDREA RAOS . MONIKA DRAGIČEVIĆ . KLARA KREŠO . ALTINA JAHAJ . DONI ŠIMUNOVIĆ · GODINA PROJEKTA 2025. · POVRŠINA LOKACIJE 4924 M2 · BRUTO POVRŠINA 1348,5 M2 · KLIJENT GRAD ZAGREB · FAZA IDEJNO RJEŠENJE · sigurnost · INSPEKTING · MAKSIM CAREVIĆ ·

 
Previous
Previous

MOCIRE · CENTAR ZA DJECU I MLADE S POSEBNIM POTREBAMA

Next
Next

CAOS · KOMPLEKS CENTRA ZA AUTIZAM I OSNOVNE ŠKOLE